Как да оформим топлоизолационна система около прозорец?

Отворите около прозорците и вратите са зони с интензивно динамично натоварване. Непрекъснатото отваряне и затваряне на вратите и случайните механични сътресения при натоварена експлоатация подлагат покритията на натоварване. С течение на времето е възможно да се появяват пукнатини.
Риск от напукване

При силни натоварвания е възможно в неукрепените зони и ъглите около отворите за прозорците и вратите да се появят пукнатини.
Проникване на влага
Напукването на топлоизолацията създава пролуки за проникване на влага. С времето влагата нарушава качествата на основата, топлоизолацията и мазилката.
Замръзване на проникнала вода
Фасадите се мокрят при валеж. През пукнатини, възникнали от неправилно укрепени рискови зони, в покритието прониква вода. При отрицателни температури водата замръзва. С времето този процес механично разрушава околния материал.
РЕШЕНИЕ!
Укрепете допълнително натоварените зони около вратите и прозорците. Защитете ъглите на конструкцията. Изпълнете детайлите според указаните схеми. Така ще осигурите дълготрайност на системата дори при интензивни натоварвания.

Схема за изпълнение на топлоизолационна система при обръщане на врати и прозорци
1. Основна конструкция
2. Прозоречна рамка
3. Лепилен състав
4. Топлоизолационна плоча
5. Шпакловка с армираща мрежа
6. Тънкослойна мазилка
7. Предварително пресована уплътнителна лента
8. Ъглов защитен профил с мрежа
9. Прозоречен профил
10. Подпрозоречен парапет
11. Закрепващ дюбел
12. Подпрозоречна дъска

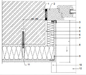
Схема на изпълнение на врати и прозорци, монтирани в една равнина с фасада
1. Основна конструкция
2. Прозоречна рамка
3. Лепилен състав
4. Топлоизолационна плоча
5. Шпакловка с армираща мрежа
6. Тънкослойна мазилка
7. Предварително пресована уплътнителна лента
8. Ъглов защитен профил с мрежа
9. Прозоречен профил
10. Подпрозоречен парапет
11. Закрепващ дюбел
12. Подпрозоречна дъска

Схема на оформяне на топлоизолационна система около подпрозоречен ламаринен парапет
1. Основна конструкция
2. Прозоречна рамка
3. Лепилен състав
4. Топлоизолационна плоча
5. Шпакловка с армираща мрежа
6. Тънкослойна мазилка
7. Предварително пресована уплътнителна лента
8. Подпрозоречен парапет
9. Полиуретанова пяна
10. Усилен профил за закрепване на подпрозоречна дъска
11. Закрепващ дюбел
Източник: Вебер
